Ponuka bytu

Byt C – Predané

Počet izieb: 3

Rozmery: 8,05 x 6,10 m

Úžitková plocha 83 m2

Pozemok: 158,79 m2 vrátane 2 parkovacích miest
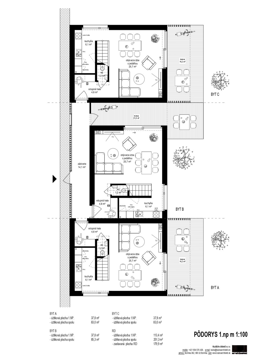
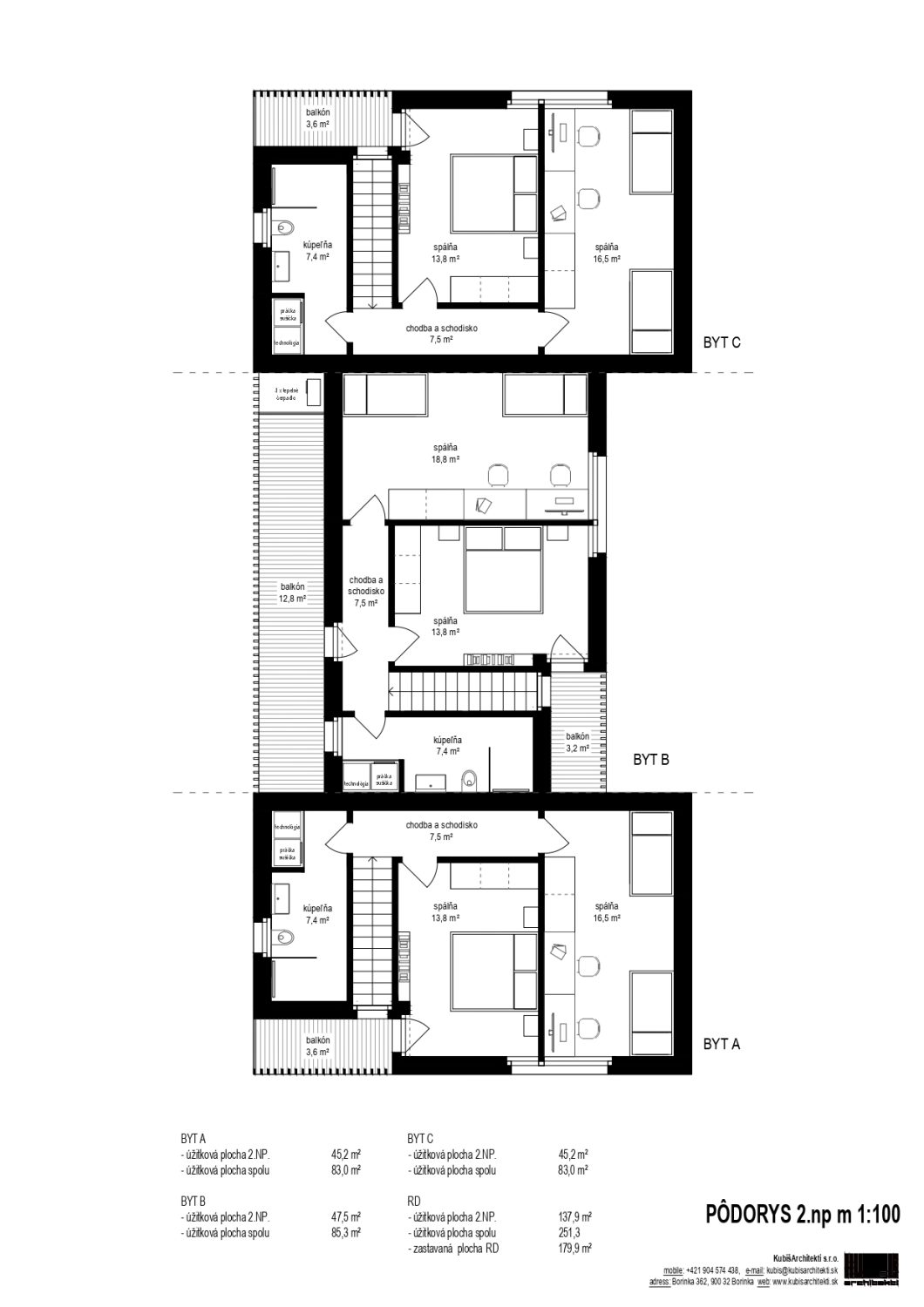
Výmera miestností

Prízemie

Vstupná hala: 4,8 m2
Kuchyňa: 6,1 m2
Obývacia izba s jedálňou: 25,7 m2
WC: 1,2 m2
Terasa: 19,2 m2

Poschodie

Izba č.1: 13,8 m2
Izba č.2: 16,5 m2
Kúpeľňa s WC: 7,4 m2
Chodba a schodisko: 7,5 m2
Balkón: 3,6 m2

Parkovacie miesta

Box č. 1: 12,68 m2
Box č. 2: 12,68 m2
Špecifikácia nehnuteľnosti

Ponúkame Vám moderné novostavby, ktoré kombinujú vysokú kvalitu, dizajn a komfort v samom srdci prírody. Každý byt je navrhnutý s dôrazom na detaily a využitie najnovších technológií pre maximálne pohodlie.

Stavba a konštrukcia:

Byty sú predávané v štádiu holobytu, čo umožňuje budúcim majiteľom prispôsobiť si interiér podľa vlastných predstáv. Vysokokvalitné hliníkové okná dokonale izolujú hluk, ale zabezpečujú aj odolnosť a dlhú životnosť. Bezpečnosť je pre nás prioritou, aj preto sú vstupné dvere vybavené protipožiarnym systémom. Stavba je realizovaná z pálenej tehly, vrátane obvodových múrov a nosných priečok, čo zaručuje vysokú pevnosť a tepelnú izoláciu. Lokálna rekuperácia pre čerstvý a zdravý vzduch v každom priestore.

Energetická účinnosť a technológie:

Zateplenie stavby je riešené minerálnou vlnou s hrúbkou 15 cm, čo prispieva k optimálnej tepelnej izolácii. Zelená strecha prináša estetický a ekologický prínos, zlepšuje izoláciu a reguluje teplotu. Chladenie a kúrenie je zabezpečené moderným tepelným čerpadlom a podlahovým vykurovaním/chladením, čo zaručuje energeticky úsporný a pohodlný chod domácnosti.

Exteriér a parkovanie:

K bytu patria dve vonkajšie parkovacie miesta v hodnote 30 000 €, ktoré sú súčasťou predajnej ceny. Základné terénne úpravy, oplotenie pozemkov a chodníky sú taktiež zahrnuté v cene nehnuteľnosti. Každý byt má priamy prístup do lesa, čo poskytuje nespočetné množstvo príležitostí na relax, aj rodinné aktivity.

Lokalita a bezpečnosť:

Novostavby sa nachádzajú v novej tichej lokalite s prístupom cez súkromnú a neprejazdnú cestu. Táto slepá ulica je určená výhradne pre majiteľov, čo zaručuje minimálny ruch a maximálne súkromie. Majitelia bytov a domov budú spoluvlastníkmi tejto príjazdovej komunikácie, čo zabezpečuje kontrolu nad bezpečnosťou a pohybom v oblasti. Tieto nehnuteľnosti spájajú moderné bývanie s prírodným prostredím a zabezpečujú ideálne podmienky pre pokojný a komfortný život. Neváhajte nás kontaktovať pre viac informácií, alebo si s nami dohodnite osobnú prehliadku.

Kontaktujte nás

Spravte prvý krok k vášmu vysnívanému bývaniu a dohodnite si s nami stretnutie

Vyplňte náš kontaktný formulár a pošlite nám vaše otázky. Náš tím vás bude čo v najkratšom možnom čase kontaktovať.

Vaše dokonalé bývanie

Nechajte sa očariť jedinečnou atmosférou Borinky, ktorá si vás podmaní modernou architektúrou v harmónii s prírodou. Splňte si vaše sny o bývaní a doprajte si svoj vysnívaný domov za dostupné ceny v blízkosti Bratislavy, aj Stupavy.